
廊坊明天限行2和7
点击图片了解详情

廊坊一小施工现场

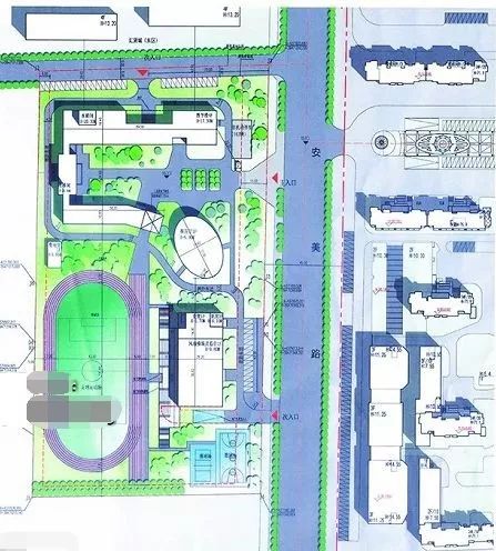
廊坊一小 规划图
总投资约0.86亿元的廊坊市第一小学新建项目参与廊坊市安次区重点项目集中开工。

安次区2019年第二次重点项目集中开工现场会
廊坊市第一小学,项目位置在安次经济开发区安铭道以北,安美路以西,学府澜湾小区二期南侧,东冠逸品龙湾西侧。廊坊市第一小学新建项目总占地约48.76亩,总建筑面积为14000㎡,总投资约0.86亿元,由安次区教育和体育局投资建设。

胡晓军等人在廊坊市第一小学新建项目展板前听取介绍
主要建设教学楼、报告厅、食堂及风雨操场、变电站、门卫以及相应附属设施。项目建成后容纳适龄小学生1800人,可大大缓解安次区南城适龄儿童的就学压力,有效促进安次区教育教学均衡发展。

位置图
来源:龙河在线



长按扫码关注